发帖
查看: 8419|回复: 26

义乌“南大门”,最新规划来了!

  [复制链接]

该用户从未签到

1269

主题

18

回帖

1万

积分

金牌会员

Rank: 6Rank: 6

积分
17952
金钱
9754
威望
2058
精华
0
注册时间
2021-7-13
发表于 2025-11-8 21:35:46 来自手机 | 显示全部楼层 |阅读模式 | 来自浙江
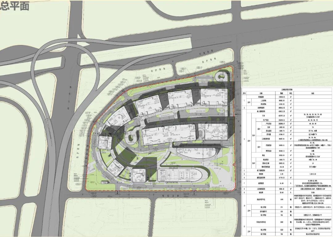
11月7日,义乌市江东街道徐江片区A-01地块规划方案公示。
 
 
图片
 

申请人义乌市交通旅游实业有限公司向义乌市自然资源和规划局义乌经济技术开发区分局提出申请,要求办理江东街道徐江片区A-01地块建设工程规划许可证手续,该项目位于义乌市江东街道,北邻环城南路,西邻佛堂大道,用地面积138629.83平方米,用地性质为工业用地,商业服务业用地。

 

申请人已委托设计单位按规划条件、相关规定、设计规范等编制规划方案,并经义乌市自然资源和规划局义乌经济技术开发区分局初步审查同意。根据《城乡规划法》、《行政许可法》及相关规定要求,现对该项目的规划方案子以公示。公示期为2025年11月8日至2025年11月17日,公示地点为项目现场和义乌经济技术开发区管委会网站。

 
 
 
相关链接:近3.6亿!义乌208亩新地块成交

规划出炉!义乌又一新地标

 

本帖点赞记录
点赞给态度,登录/注册 就能点赞
钱塘侬 2025-11-9 07:06 +1
大山(王伟法) 2025-11-9 06:12 +1
刘kug 2025-11-9 06:01 +1
春天到了 2025-11-9 05:26 +1
天舒678 2025-11-9 05:22 +1
明流 2025-11-9 04:56 +1
老舅 2025-11-9 04:56 +1
枫叶神 2025-11-9 04:43 +1
沙滩上的脚印 2025-11-9 01:09 +1
扑克艺术之窗 2025-11-9 00:34 +1
回复

使用道具 举报

该用户从未签到

49

主题

2208

回帖

2万

积分

钻石会员

爱我中华,爱我义乌

Rank: 7Rank: 7Rank: 7

积分
27885
金钱
10223
威望
1636
精华
0
注册时间
2004-7-6
发表于 2025-11-8 21:48:30 来自手机 | 显示全部楼层 | 来自浙江
佛堂大道 双向左转还是没立交?
本帖点赞记录
点赞给态度,登录/注册 就能点赞
春天到了 +1
回复 支持 1 反对 0

使用道具 举报

该用户从未签到

18

主题

1万

回帖

5万

积分

论坛元老

Rank: 8Rank: 8

积分
55377
金钱
34174
威望
18
精华
0
注册时间
2016-8-9
发表于 2025-11-8 22:05:54 来自手机 | 显示全部楼层 | 来自浙江
太好了!
本帖点赞记录
点赞给态度,登录/注册 就能点赞
春天到了 +1
回复 支持 1 反对 0

使用道具 举报

该用户从未签到

26

主题

3万

回帖

12万

积分

论坛元老

Rank: 8Rank: 8

积分
125380
金钱
82343
威望
49
精华
0
注册时间
2017-4-23
发表于 2025-11-8 22:18:28 来自手机 | 显示全部楼层 | 来自浙江
发展永无止境
本帖点赞记录
点赞给态度,登录/注册 就能点赞
春天到了 +1
回复 支持 1 反对 0

使用道具 举报

该用户从未签到

12

主题

1万

回帖

8万

积分

论坛元老

Rank: 8Rank: 8

积分
88870
金钱
53986
威望
164
精华
0
注册时间
2018-2-15
发表于 2025-11-8 22:31:39 来自手机 | 显示全部楼层 | 来自浙江
TPP很不错
本帖点赞记录
点赞给态度,登录/注册 就能点赞
春天到了 +1
回复 支持 1 反对 0

使用道具 举报

该用户从未签到

95

主题

2709

回帖

3万

积分

钻石会员

Rank: 7Rank: 7Rank: 7

积分
31059
金钱
15920
威望
750
精华
0
注册时间
2017-9-7
发表于 2025-11-8 23:41:59 来自手机 | 显示全部楼层 | 来自浙江
希望设计的50年不会落后。
回复 支持 反对

使用道具 举报

签到天数: 287 天

[LV.8]以坛为家I

1万

主题

5万

回帖

60万

积分

论坛元老

Rank: 8Rank: 8

积分
602776
金钱
378606
威望
30892
精华
0
注册时间
2011-8-1

爱宠勋章K歌达人美食达人民意领袖男民意领袖女汽车发烧友论坛嘉宾勋章论坛卫士勋章游戏达人

发表于 2025-11-8 23:42:44 来自手机 | 显示全部楼层 | 来自浙江
路过
回复 支持 反对

使用道具 举报

签到天数: 626 天

[LV.9]以坛为家II

6

主题

3321

回帖

4万

积分

钻石会员

Rank: 7Rank: 7Rank: 7

积分
49812
金钱
31813
威望
551
精华
0
注册时间
2011-2-13
发表于 2025-11-8 23:53:18 来自手机 | 显示全部楼层 | 来自浙江
交通更方便了
回复 支持 反对

使用道具 举报

该用户从未签到

27

主题

3万

回帖

10万

积分

论坛元老

Rank: 8Rank: 8

积分
109455
金钱
64493
威望
30
精华
0
注册时间
2018-12-12
发表于 2025-11-9 00:34:51 来自手机 | 显示全部楼层 | 来自浙江
。,
回复 支持 反对

使用道具 举报

该用户从未签到

16

主题

7000

回帖

4万

积分

钻石会员

Rank: 7Rank: 7Rank: 7

积分
43661
金钱
28980
威望
0
精华
0
注册时间
2018-11-1
发表于 2025-11-9 01:10:06 来自手机 | 显示全部楼层 | 来自浙江
好像不错
回复 支持 反对

使用道具 举报

您需要登录后才可以回帖 登录 | 注册

本版积分规则

义乌稠州论坛

关注公众号

下载客户端

客服热线:9:00-16:00

0579-85099500

公司名称:义乌好耶网络技术有限公司

公司地址:浙江省义乌市人力资源产业园10楼

浙B2-20070208-3
浙公网安备 33078202000157号
广播电视节目制作经营许可证(浙)字第05723号
Copyright © 2026 义乌热线 Powered by Discuz! X3.4
快速回复 返回列表 返回顶部